ウルコナスタイル
ウルコナスタイル
ラフに使える土間空間
多様な用途に使える土間を室内空間へ取り入れたプランです。
アウトドア用品などの収納・メンテナンスにもうってつけの、趣味と生活が交わるフレキシブルスタイルの家です。好きなものに囲まれて暮らしたい人にぴったりの癒しの場所となるはずです。家族や仲間と趣味について語り合うなど、楽しみ方は自由自在です。
シャープでモダンな印象の片流れ屋根と金属系の外壁。大きく開放的なサッシが外と中の土間をつなぎます。
プラン

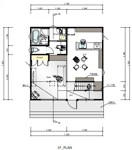
1階プラン
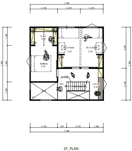
2階プラン
内観・外観










