カフェスタイル
カフェスタイル
カフェにいるようなくつろぎ空間
まるでカフェにいるようなくつろぎを自宅で感じられるプランです。
親しい人たちを招いてお茶会や食事会など、さまざまなシーンに対応可能なクラシカルなスタイルの家です。テラスによって室内外がゆるやかにつながり、アイデア次第で色々な楽しみ方が可能に。開放的な空間はコミュニティの中心になることが期待できます。
軒は出さずにすっきりとした三角屋根と南面に大きく開放された窓が特徴です。奥行のあるリビング前のテラスが内と外をゆるやかにつなぎます。
プラン

1階プラン
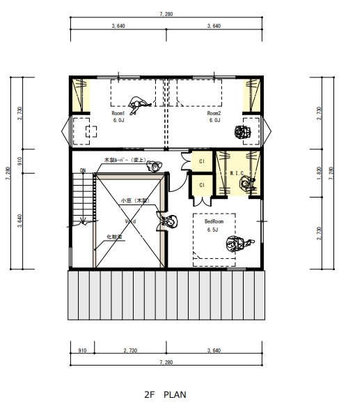
2階プラン
内観・外観










